1. オフィスビル紹介
  2. エランタワー
élan Tower

エランタワー

エランタワー

広島駅から徒歩圏内の好立地、
広々とした共用部と開放的なオフィスで
快適なビジネス環境を実現。

駅前大通りに面し、稲荷町駅電停目の前にあるアクセス抜群の立地。
新耐震基準・開放感ある高天井・エレベーター3基・大型立体駐車場3基など設備も充実しています。広島駅周辺エリアにおける希少な大型・築浅ビルとして、広島での新たな拠点に最適です。

アクセス

駅前立地と充実した交通アクセス

稲荷町駅目の前に位置し、公共交通機関が非常に便利です。広島駅前大通りに面しているため、県内外からの来客も迷うことなくアクセスできます。さらに大型立体駐車場3基を完備しており、電車利用でも車利用でも、どちらを選んでも快適にアクセスできる環境が整っています。

交通アクセス

  • JR広島駅から徒歩7分
  • 広島電鉄 稲荷町駅から徒歩1分

基本情報

延床面積 8,287.06m²
構造 鉄骨造陸屋根9階建
駐車場 立体駐車場 114台
設備
  • 個別空調
  • 共用部防犯カメラ
  • AED
  • OAフロア
  • 各室警備システム
  • 各階共用部空調
  • 喫煙ルーム
  • 外気処理空調機

ギャラリー

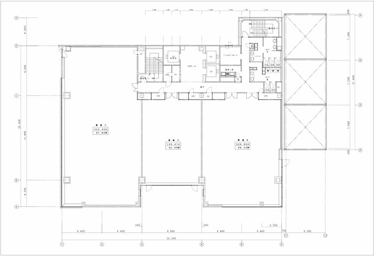
フロアマップ

フロアマップ

Othersその他のビルを見る

Contact

お問い合わせ

お客様のご要望に応じ最適なオフィス環境を
ご提案いたします。お気軽にご相談ください。

ご契約までの流れはこちら

手続きの流れ

フォームでのお問い合わせ

お問い合わせはこちら